
The Norris School District Board of Education has called a school bond election in the amount not to exceed $34,800,000 to support improvements to the high school, middle school, elementary school, and campus grounds.
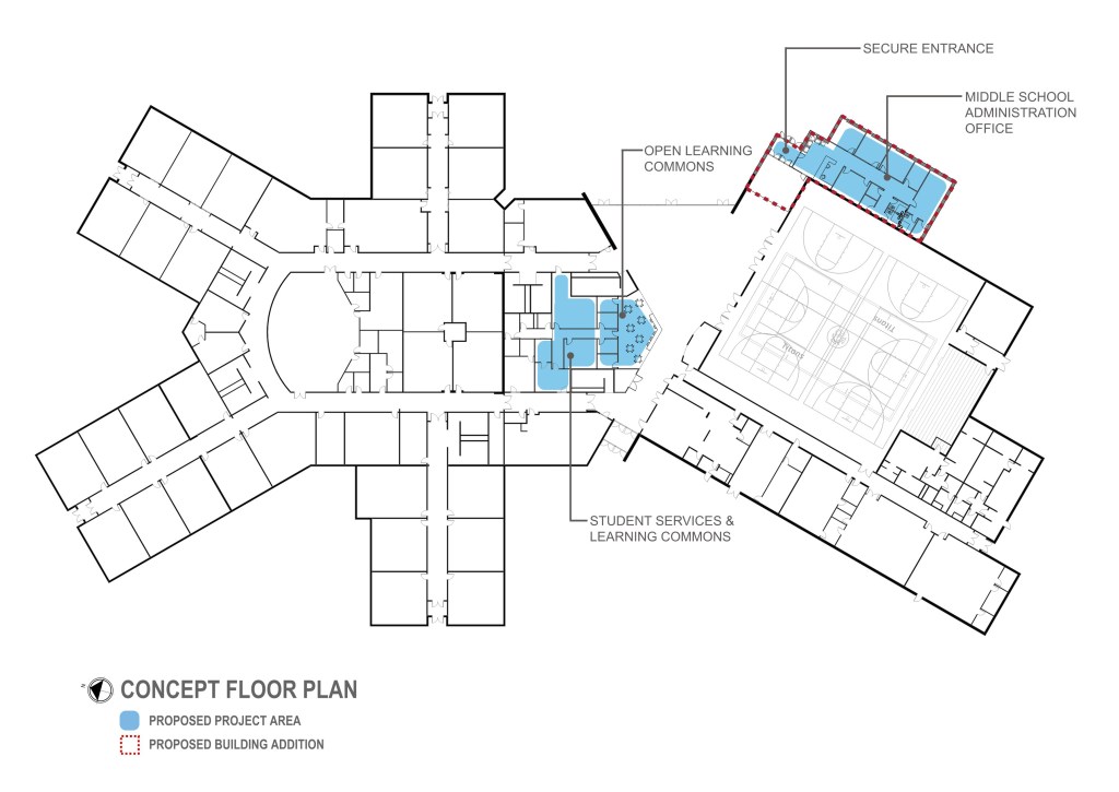
SECURING OUR SCHOOL FACILITIES
Meeting Today’s School Safety Standards
Our schools were built for a different time. Today’s safety standards require controlled access and direct visibility at the main entrance. Relocating administrative offices to primary entrances strengthens supervision, limits unauthorized access, and improves response time.
Proposed Solutions:
IMPROVING PUBLIC SAFETY AROUND SCHOOLS
Reducing Traffic Accident Risk
Buses, parent vehicles, student drivers, and pedestrians currently share overlapping routes, creating congestion and conflict points. Separating traffic patterns and improving entry and exit flow reduces risk during the busiest times of the school day.
Proposed Solutions:
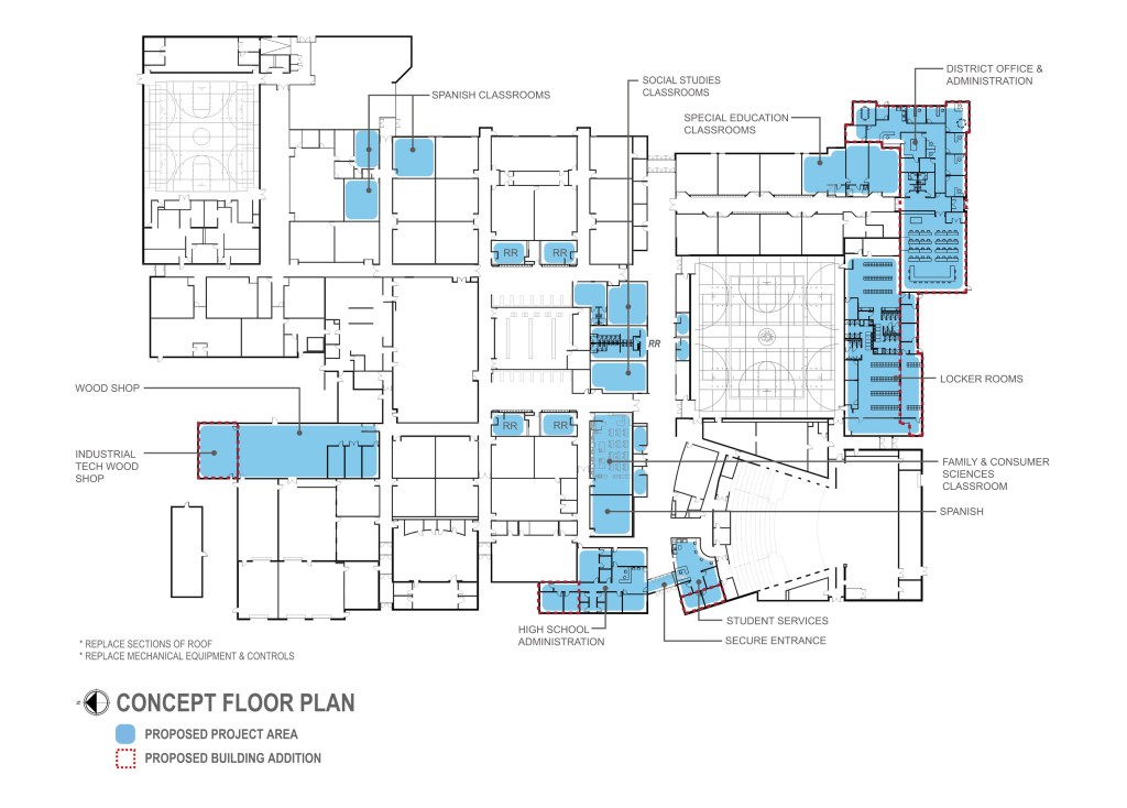
PROTECTING THE COMMUNITY’S INVESTMENT
Replacing Aging Building Systems
Major systems in our High School and Elementary buildings have reached the end of their service life. Roof sections are aging, and HVAC equipment requires ongoing, costly repairs. Replacing these systems protects classrooms, improves air quality, and reduces long-term maintenance expenses.
Proposed Solutions:
UPDATING SCHOOLS TO MODERN STANDARDS
Creating Long-Term Accessibility
Some classrooms, restrooms, and locker rooms were built decades ago and no longer meet modern standards or ADA requirements. Updating these spaces and relocating administrative offices to exterior entrances ensures all students and staff have safe, compliant, and adaptable learning environments.
Proposed Solutions:
High School
Middle School
Elementary School

CAMPUS PRIORITY PROJECTS
The project improves safety and traffic flow across campus with enhanced pick-up and drop-off areas, a new high school drive, added crosswalks, and expanded parking. It also strengthens student and operational spaces with a new middle school playground, a new bus barn facility, and the renovation of the existing bus barn for maintenance and storage.

This is an IN PERSON election.
April 13
Early voting begins
April 27
Last day for ONLINE voter registration
May 1
Last day for IN-PERSON voter registration /
last day to request early or mail-in ballot
May 11
Last day for early voting in-person at
Election Commissioner’s Office
May 12
Primary Election, Polls Open 8am-8pm
Lancaster County Clerk:
555 S 10th Street, Room 108
Lincoln, NE 68508
(402) 441-7481
Gage County Clerk:
612 Grant St., PO Box 429
Beatrice, NE 68310
(402) 223-1300, Option 4
Otoe County Clerk:
1021 Central Avenue, Room 103
Nebraska City, NE 68410
(402) 873-9505
Click here to locate your polling location.
Click here for Primary Election Information.